Merricks Farmhouse






































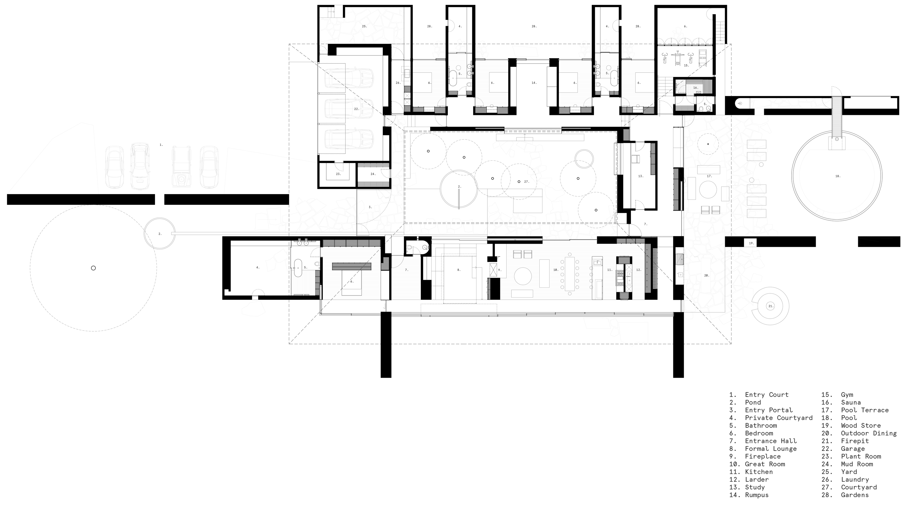
This new build on a spectacular 50 acre property on the Mornington Peninsula, was conceived of as an abstraction of a typical Australian Farmhouse. Luxuriously spread out over a single level, the program wraps around a large central courtyard garden, which provides a central focal point as well as shelter from the wind on its exposed hilltop siting.

A simple, sleek roof rests on heavy, planted projecting walls with no columns, and its deep overhangs create verandas around the entire perimeter.

In collaboration with Nielsen Jenkins Architects (Brisbane)
Photography by Tom Ross